近日,贵阳市自然资源和规划局就“贵阳市白云区麦架镇摆茅村村级活动中心建设项目”发布行政审批批前公示,向社会公开项目规划设计方案。

根据公示信息,该项目申报单位为贵阳市白云区麦架镇摆茅村村民委员会,体现了基层村组织在改善本地民生、提升服务能力上的主动作为。项目选址于白云区麦架镇摆茅村。
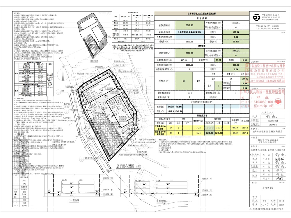
公示的核心依据是项目的总平面规划设计方案及主要技术经济指标。根据方案,该项目总用地面积为3312.65平方米,且全部为可计容用地。规划建设总建筑面积3086.26平方米,容积率为0.93,建筑密度32.17%。项目高度重视环境品质,规划绿地面积达1173.15平方米,绿地率高达35.41%,将为村民提供一个宽敞、绿色的公共活动环境。
责任编辑:李霞




